Radius Barrel Skylight rendering

Radius Barrel Vault Skylights

Barrel vault skylights are often used to open up and bring natural light to hallways, corridors and walkways connected to buildings. In radius barrel vault skylights, the glass has a true curved radius, as opposed to a segmented barrel vault skylight. Vault radius can be determined by aesthetic intent, architectural and structural requirements, or a combination of the two. Curb size for barrel vault skylights is determined by skylight size and structural requirements. Shallow pitched or large radius arcs may require wider curbs, while smaller hemispherical vaults can usually use a standard curb size for mounting. Polycarbonate glazing can be used as a value engineered option.

Architectural blueprint showing a plan view and elevation of a radius vault. The plan view displays a grid layout with numbered points, and the elevation shows the curved vault structure with labeled sections.

Radius Barrel Vault Skylight Details

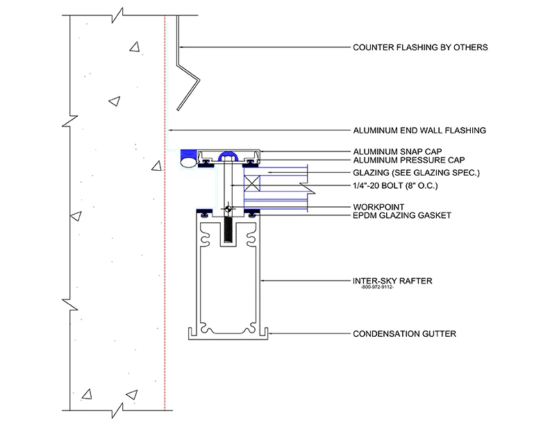
Diagram of a skylight assembly showing labeled components: aluminum snap cap, aluminum pressure cap, glazing, 1/4-inch bolt, workpoint, EPDM glazing gasket, screw boss, inter-sky rafter, and condensation gutter.

Detail 1 Rafter
DWG | DXF | PDF

Technical diagram of skylight flashing installation showing aluminum snap cap, silicone seals, glazing, gaskets, screws, purlin clips, and anchoring components.

Detail 2 Sill
DWG | DXF | PDF

Technical architectural drawing of skylight installation details, showing components such as aluminum snap cap, silicone seal, glazing, EPDM gasket, skylight rafter, skylight sill, weep hole, workpoint, anchor, sill flashing, and curb by others.

Detail 2a Sill
DWG | DXF | PDF

A technical diagram illustrating the assembly of a skylight system, including components like silicone seal, backing rod, glazing, EPDM setting block, EPDM glazing gasket, TEK screw, aluminum purlin clip, inter-sky purlin with fin, and aluminum snap bottom.

Detail 4 Purlin, Flush Glazed
DWG | DXF | PDF

Technical drawing of a skylight assembly showing parts like aluminum snap cap, pressure cap, glazing, EPDM glazing gasket, TEK screw, aluminum purlin clip, inter-sky purlin with fin, and aluminum snap bottom.

Detail 4a Purlin, Capped
DWG | DXF | PDF

D7-Model.jpg

Detail 7 End Rafter
DWG | DXF | PDF

D8-Model.jpg

Detail 8 End Glazing
DWG | DXF | PDF

D9-Model.jpg

Detail 9 Vertical Sill
DWG | DXF | PDF

Back to Configurations
Contact Us
Project Gallery